Ceiling Baffles


Ceiling Baffles accentuate the two dimensional appearance of linear space. Available in 2- or 3-dimensional profiles, the dominating, parallel, metal and wood surfaces of ADC's Linear Ceiling Baffles transform the ceiling plane into a festive, visual splendor.

Technical Specifications


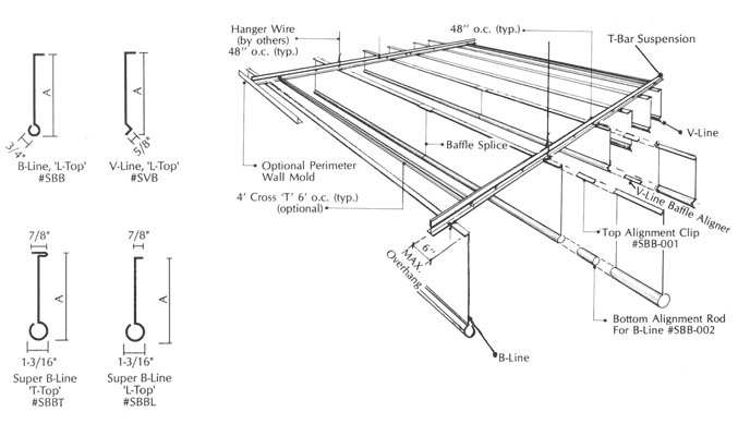
BAFFLE SECTION:
B-line- Ball Bottom.
V-line- Angled Bottom.
Beam- Wide (1"+) Dimensional Baflle.
Omega- Narrow (1/4" - 3/4") Dimensional Baflle.

BAFFLE DEPTH:
4",6", 8", and 12" (Custom/Variable Available).

BAFFLE SPACING:
2", 4", 6", 8", 10", 12", up to 24" (Custom/Variable Available)

FINISHES:
Standard White (F41 ) is polyester coil coated.
Custom color (F47) is polyurethane epoxy.
Wood Grain (F39/F40) Available ("Beam" & "Omega" only.)

PLENUM:
See Baffle Data in product PDF.

FIRE CODE:
Metal- non-combustible.
Grid- fire-rated (optional).

INSTALLATION


Ceiling Baffle